NCH須磨・友が丘Ⅱ(平屋)/建築中
分譲中
| 物件種別 | 新築一戸建て(建売) |
|---|---|
| 分譲価格 | 5,380万円(消費税・外構工事費・設計料等込み) |
| 所在地 | 神戸市須磨区友が丘3丁目 |
| 交通 | 神戸市営地下鉄線「名谷」駅よりバス約11分「北須磨団地東口」停徒歩5分、もしくは神戸市営地下鉄線「妙法寺」駅よりバス約6分「北須磨団地東口」停徒歩5分 |
| 敷地面積 | 224.86㎡(68.02坪)実測 |
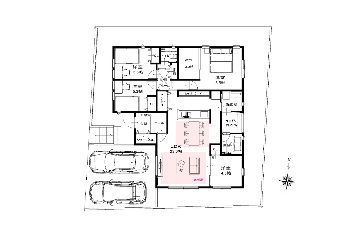
| 建物面積 | 108.54㎡(4LDK) |
| 建物構造 | 木造ガルバリウム鋼板葺平屋建て |
| 建築年月 | 令和8年4月竣工予定 |
| 特記事項 | ■建築確認番号/ 第HK25-40581号 R7.7.17 ★省エネ適合住宅 ★フラット35S適合住宅 ★LOW-eペアガラスハイブリッドサッシ ★木目を愛でるウッドワン銘木突板フローリング ★LDガス床暖房 ★深型食器洗乾燥機付システムキッチン ★IHクッキングヒーター ★24時間換気機能付きレンジフード ★オールインワン浄水栓 ★ワイド2550mmのカップボード ★24時換気機能・乾燥暖房機付ユニットバス ★シャワー洗面化粧台 ★ランドリールームにミラタップkacu物干し2本 ★シャワートイレ・キャパシア手洗キャビネット設置 ★エコジョーズ給湯機 ★ガレージ2台分 |
分譲予定の物件について
分譲予定の物件については、早い段階でお話を頂きますと、
間取りの変更等のご要望もお受けすることができます。
ご検討中の方は、是非一度詳細についてお申し付けください。





















